Назад: 4.5. Применение сварки давлением
4.6. Балок коробчатого сечения
В технологическом отношении балки
коробчатого сечения сложнее, чем двутавровые, трудоемкость их изготовления на
30…60 % выше. Однако, благодаря ряду
конструктивных преимуществ (большая жесткость на кручение, меньший удельный
расход металла и др.) балки коробчатого сечения находят широкое применение,
особенно в конструкциях грузоподъемных кранов и пролетных строений мостов.
Для придания большей жесткости вдоль балки располагают
несколько поперечных диафрагм, которые приваривают к сжатому поясу и стенкам.
Поскольку тавровые соединения, расположенные в поперечном к оси балки
направлении создают большую концентрацию напряжений, в балках работающих при
переменных нагрузках, например, в подкрановых балках, приваривать диафрагмы к
растянутому поясу запрещается. Наличие диафрагм помимо увеличения жесткости
конструкции значительно упрощает процесс сборки балок.
Технология изготовления балок коробчатого сечения в
мелкосерийном производстве мало отличается от изготовления двутавровых балок.
Общая схема технологического процесса изготовления
выглядит следующим образом. После раскроя отдельных элементов (поясных листов,
стенок, диафрагм) и подготовки кромок, приступают к сборке. При изготовлении
балок большой протяженности, требуемые полки и стенки составляют из нескольких
листов и сваривают встык. Для исключения непровара, сварку выполняют либо с
двух сторон, либо на медной подкладке с формированием обратной стороны шва.
Иногда боковые стенки набирают из отдельных листов, а их стыки сваривают после
сборки балки. Такой прием облегчает сборку балок большой длины, имеющих
строительный подъем, но значительно усложняет сварку стыков стенки.
Сборку балки начинают с установки на верхнем поясе
диафрагм. Как в индивидуальном, так и в серийном производстве, эта операция
мало механизирована, её выполняют по разметке. Затем, используя диафрагмы в
качестве шаблонов, устанавливают боковые стенки и прикрепляют на прихватках к
поясу и диафрагмам. После этого следует ряд кантовок, обеспечивающих сварку
диафрагм со стенками в нижнем положении. Завершает сборку присоединение на
прихватках нижнего пояса. Сварку поясных швов обычно выполняют в положении
"в угол". Поворот балки в положение «в лодочку» обычно не производят,
так как для коробчатого сечения подрезы поясного шва менее опасны, чем для
двутавров.
При изготовлении балок коробчатого сечения
существенная механизация труда может быть достигнута только в условиях
серийного производства.
С точки зрения организации сварочного производства
больший интерес представляет крупносерийное производство. Типичным примером
такого производства является изготовление подкрановых балок на поточной линии
Узловского машиностроительного завода (г. Узлов, Тульской обл.)
Вследствие большой длины балок (до

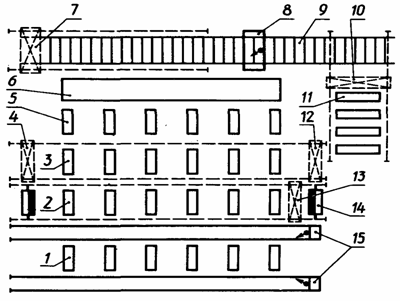
Рис.4.18. Поточная линия изготовления балок коробчатого сечения:
1 – стенд для сварки поясных швов; 2 – стенд
окончательной сборки; 3 – стенд для прогиба балки; 4 – портальная самоходная
установка для сборки стенок; 5 – стенд для сборки и сварки верхнего пояса с диафрагмами;
6 – накопитель; 7 – участок рентгеновского контроля; 8 – сварочный стенд для
сборки и сварки балок; 9 – роликовый конвейер; 10 – портальный кран; 11 – склад
обработанных заготовок; 12 – портальная установка для сварки диафрагмы со
стенками; 13 – самоходный портал; 14 – гидродомкрат; 15 – сварочный автомат.
Все заготовительные операции выполняются в отдельном
цехе и на склад поточной линии 11 поступают полностью обработанные заготовки
элементов балок. Портальный кран 10 с электромагнитными захватами подает
поочередно на рольганг 9 заготовки полок либо стенок. В сварочном стенде 8
осуществляется сборка поперечных стыков элементов балки и автоматическая сварка
под флюсом за один проход с обратным формированием шва на медной охлаждаемой
подкладке, перемещающейся вдоль стыка синхронно со сварочной головкой. По мере
сварки поперечных стыков полотнище перемещается по рольгангу на участок
рентгеновского контроля. Рентгеновская аппаратура размещена в портальной
установке 7, перемещаясь вдоль рольганга, она осуществляет рентгенографический
контроль всех предусмотренных ТУ швов. Обычно контролируют все поперечные швы
нижнего (растянутого) пояса и производят выборочный контроль швов остальных
элементов. Готовые элементы (пояса и стенки) укладывают вертикально в
накопители 6. Транспортировку элементов балки производят мостовым краном с
помощью траверсы, обеспечивающей равномерное закрепление листа по всей длине
эксцентриковыми захватами, расположенными через 4...5 м.
Стенды 1,2,3,5 для сборки и сварки балки представляют
собой систему козелков, размещенных параллельно друг другу на расстоянии
1,5…2,0 м. На стенде 5 собирают и сваривают верхний пояс с диафрагмами
(«гребенку»). Транспортировку «гребенки» на стенд 3 также осуществляют мостовым
краном, прикрепляя её равномерно в нескольких местах к жесткой траверсе.
Центральные козелки стенда 3 имеют регулировку по высоте, что позволяет при
сборке балки создавать строительный подъем (компенсирующий прогиб балки при
работе конструкции под нагрузкой). Величина строительного подъема может
достигать нескольких десятков миллиметров и, следовательно, раскрой боковых стенок
должен учитывать это.
Сборка боковых стенок осуществляется с помощью
портальной установки 4, которая перемещаясь по направляющим вдоль балки,
прижимает стенки к диафрагмам и верхнему (сжатому в период эксплуатации крана)
поясу. Сборщик, обслуживающий портальную установку, соединяет детали между
собой на прихватках.
Конструкция портальной установки снабжена системой
горизонтальных и вертикальных пневматических прижимов, размещенных на портале,
имеет привод перемещения вдоль стенда и фиксатор, препятствующий смещению
портала под действием вертикальных прижимов.
Выбор способа сварки диафрагм со стенками определяет
дальнейший ход технологического процесса. Если принять сварку под флюсом, то
швы необходимо расположить в нижнем положении, т.е. для выполнения сварки
диафрагм требуется два раза кантовать изделие. С помощью ручной дуговой сварки
все швы можно выполнять без кантовки, но производительность этого способа
сварки невысока, кроме того, сварщику приходиться работать в неудобном
положении. Большую производительность обеспечивает способ сварки вертикальных
швов в среде СО2 с принудительным формированием наплавленного
металла. Установка 12 портального типа имеет четыре головки для сварки вертикальных
швов, расположенные попарно на траверсах. Перемещая установку вдоль балки,
оператор производит вначале грубую ориентировку сварочных головок относительно
диафрагм, а затем более точную корректировку их по шву. Кроме того, каждая
головка имеет копирующие ролики. Сварочные головки размещены так, что
одновременно производится сварка односторонними швами двух диафрагм к двум
стенкам, причем для уменьшения остаточных сварочных деформаций два шва, прикрепляющие
диафрагму к стенке располагают с противоположных сторон относительно диафрагмы.
Затем мостовым краном балку передают на стенд 2, где
осуществляют сборку нижнего пояса. Перед сборкой нижнего пояса с балкой
необходимо устранить угловые деформации соединения диафрагмы со стенкой,
образующиеся в процессе сварки. Для этого используют метод предварительного
изгиба балки (без верхнего пояса) в обратном направлении (раздел 3.5.3, рис.3.44).
Расположенные на тележках 14 гидродомкраты подводят к концам балки и, нажимая
на верхний пояс, прогибают ее так, что свободные кромки вертикальных листов
оказываются растянутыми в упругой области, что приводит к устранению сварочных
деформаций. Затем укладывают нижний пояс. Самоходный портал 13 с вертикальными
пневмоцилиндрами прижимает пояс к балке, и его закрепляют на прихватках.
Операция предварительного изгиба балки не только устраняет гофры стенок,
улучшая тем самым их работу при эксплуатации крана, но и позволяет создать в
нижнем поясе предварительные напряжения сжатия, что также положительно влияет
на работоспособность балки.
Далее балку передают на стенд 1 для сварки поясных
швов. Вдоль стенда с каждой его стороны имеются рельсовые пути, по которым
перемещаются два автомата 15, выполняющие сварку под флюсом одновременно двух
поясных швов. Ввиду того, что параллельность рельсового пути балки на всем
протяжении шва обеспечить практически невозможно, автоматы снабжены выносными
сварочными головками, закрепленными шарнирно на корпусе автомата. В процессе
сварки пружины постоянно поджимают головку к балке, а копирующий ролик
направляет электрод по стыку.
После сварки первой пары швов производится кантовка
балки краном и аналогично сваривают вторую пару швов.